EG6K41J英标常开式气动衬胶隔膜阀

- 销售:
- 销售:
- 传真:
详情介绍
- 产品介绍
- 服务承诺
- 订货流程
EG6K41J英标常开式气动衬胶隔膜阀 产品说明
设计与制造:GB122239
结构长度:GB12221、JB1688
法兰连接尺寸:GB4216、JB78 G6B41W无衬里隔膜阀
G6B41J衬胶气动隔膜阀,常开型隔膜阀
用途
用途:本阀专用于控制非腐蚀性或一般腐蚀性介质,阀体内腔表面无衬里或覆有可供选择的各种橡胶,适用于不同工作温度和流体管路。
适用温度:≤85℃、≤100℃、 ≤120℃、≤150℃(按照衬里和隔膜材料)
压力等级:PN0.6、1.0、1.6
主要零件材料
阀体:铸铁、球墨铸铁、碳钢、不锈钢
阀盖:铸铁、球墨铸铁、碳钢、不锈钢
衬里:无衬里、橡胶
隔膜:橡胶
阀瓣:铸铁、碳钢
气缸:球墨铸铁
活塞:碳钢
阀杆:碳钢
手轮:铸铁
测试
衬里层:电火花检测
试验与检验按GB/T13297标准
公称压力:PN(Mpa)
阀体:PN×1.5
密封:PN×1.1
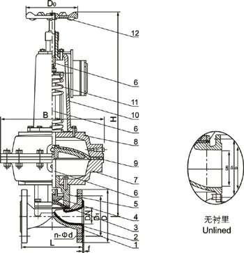
部件列表:1、阀体 2、阀体衬里 3、隔膜 4、阀瓣 5、下阀杆 6、阀盖 7、气缸 8、活塞 9、弹簧 10、气缸盖 11、上阀杆 12、手轮
主要尺寸及重量
DN | 公称压力 | 工作压力 | L | D | D1 | n-φd | F | H1 | H2 | D0 | B | 气源压力 | 气源接头 | 耗气量 | 重量 |
15 | 0.6 | 0.6 | 125 | 95 | 65 | 4-14 | 2 | - | - | - | - | - | - | - | - |
20 | 139 | 105 | 75 | 4-14 | 2 | - | - | - | - | - | - | - | - | ||
25 | 145 | 115 | 85 | 4-14 | 2 | 306 | 320 | 120 | 94 | 0.4 | 10×1 | 2.395×102 | 7.5 | ||
32 | 160 | 140 | 100 | 4-18 | 2 | 410 | 430 | 140 | 120 | 0.4 | 12×1.25 | 6.082×102 | 14.5 | ||
40 | 180 | 150 | 110 | 4-18 | 3 | 415 | 435 | 140 | 120 | 0.4 | 12×1.25 | 6.082×102 | 16 | ||
50 | 210 | 165 | 125 | 4-18 | 3 | 463 | 488 | 160 | 185 | 0.4 | 12×1.25 | 1.235×102 | 24.5 | ||
65 | 250 | 185 | 145 | 4-18 | 3 | 620 | 660 | 160 | 245 | 0.5 | 16×1.5 | 3.725×102 | 30 | ||
80 | 300 | 200 | 160 | 4-18 | 3 | 627 | 687 | 200 | 245 | 0.5 | 16×1.5 | 3.725×103 | 51.5 | ||
100 | 350 | 220 | 180 | 8-18 | 3 | 719 | 769 | 240 | 330 | 0.5 | 16×1.5 | 9.458×103 | 86.5 | ||
125 | 400 | 250 | 210 | 8-18 | 3 | 804 | 872 | 320 | 380 | 0.5 | 20×1.5 | 1.409×104 | 133 | ||
150 | 460 | 285 | 240 | 8-22 | 3 | 920 | 1000 | 320 | 470 | 0.5 | 20×1.5 | 2.868×104 | 196.5 | ||
200 | 0.4 | 570 | 340 | 295 | 8-22 | 4 | 1145 | 1265 | 400 | 470 | 0.5 | 20×1.5 | 4.619×104 | 279.5 | |
250 | 680 | 395 | 350 | 12-22 | 4 | - | - | - | - | - | - | - |
良好的品质、优良的服务 宁波戈伟硬件开发有限公司为你创造更多价值!
“宁波戈伟硬件开发有限公司”的期望,不断提升服务质量,精益求精,“真诚的服务”是“宁波戈伟硬件开发有限公司”永恒的主题。“宁波戈伟硬件开发有限公司”严格按照IS09001-2000 质量体系认证要求,质量严格把关, 责任到人,确保生产、销售、服务的健康运行。加强与用户沟通,竭诚为广大客户提供优良产品,至善至美服务。特此我厂做出以下承诺:
产品标准:
产品严格按照中国GB、HG 标准和美国API等标准设计、制造、验收。密封面硬度达到国家规定要求,宽度超过国家标准。
售前服务:
产品介绍,技术交流,非标产品设计,疑难解答。
售中服务:
守信合同,保证及时供货,随时保持与客户联系。 对特殊或复制的产品,我厂安排技术人员对用户进行产品使用、故障排除
售后服务:
1、“宁波戈伟硬件开发有限公司”牌产品品质期为自出厂起12个月,实行“三包”服务(包退、包换、保修)。
2、产品在使用中我厂定期组织技术、质检人员进行访问,征询用户对产品质量、 使用状况、改进意见等方面的反馈, 以便进一步提高产品质量。
3、对用户投诉质量问题,快速作出反应,售后服务人员在24-36小时(省外48小时)赶赴现场。
4、对售后服务,要求用户填写服务后的质量反馈信息表,并作出鉴定意见,以便提高宁波戈伟硬件开发有限公司的服务质量。
1、客户如对产品有特殊要求,须在订货合同中提供以下说明:
a、结构长度;
b、连接形式;
c、公称直径、全通径、缩径、管道尺寸;
d、运行介质及温度、压力范围;
e、试验、检验标准及其他要求
2、本厂可根据客户特定要求配置各类驱动装置。
3、如由客户提供确定的阀门类型和型号时,客户应正确说明其型号的含义和要求,在供需双方理解一致的条件下签订合同。
4、期货、订货的客户请先来电函详细告诉所需的阀门型号、规格、数量以及交货时间、地点,并按总的30%预定金或全额货款及时汇入我厂帐户,其余货款待发货前汇入,以便及时安排发货。
订单流程:
1、客户采购清单传真至,或来电咨询
2、收到客户采购清单,为客户提供阀门型号选型与报价(价格清单)。
3、具体商定:交货期、特殊要求等事宜。
订货须知:
1、客户如对产品有特殊要求,须在订货合同中提供以下说明:
|
|||||
|
|||||
2、本厂可根据客户特定要求配置各类驱动装置。
|
|||||
3、如由客户提供确定的阀门类型和型号时,客户应正确说明其型号的含义和要求,在供需双方理解一致的条件下签订合同。
|
|||||
4、期货、订货的客户请先来电函详细告诉所需的阀门型号、规格、数量以及交货时间、地点,并按总的30%预定金或全额货款及时汇入我厂账户, 其余货款待发货前汇入,以便及时安排发货。
|
售中服务:
守信合同,保证及时供货,随时保持与客户联系。
对特殊或复制的产品,我厂安排技术人员对用户进行产品使用、故障排除
售后服务:
1、“宁波戈伟硬件开发有限公司”产品品质期为自出厂起12个月,实行“三包”服务(包退、包换、保修)。
2、产品在使用中我厂定期组织技术、质检人员进行访问,征询用户对产品质量、使用状况、改进意见等方面的反馈,
以便进一步提高产品质量。
3、对用户投诉质量问题,快速作出反应,售后服务人员在24-36小时(省外48小时)赶赴现场。
4、对售后服务,要求用户填写服务后的质量反馈信息表,并作出鉴定意见,以便提高“宁波戈伟硬件开发有限公司”的服务质量。
声明 |
|