Q41H金属硬密封球阀

- 销售:
- 销售:
- 传真:
详情介绍
- 产品介绍
- 服务承诺
- 订货流程
Q41H金属硬密封球阀是我公司开发的高性能球阀产品。阀座采用板簧加载的金属密封结构,在高温下启闭轻松。球体及阀座采用特殊硬化处理,密封面不擦伤。手动硬密封球阀具有双向密封功能。主要用途:金属硬密工作温度-29~425℃(碳钢)或-40~550℃(不锈钢)的各种管路上,用于截断或接通管路中的介质,选用不同的材质,金属硬密封球阀可分别适用于水、蒸汽、油品、硝酸、醋酸、氧化性介质、尿素等多种介质。
金属硬密封球阀 产品特点
1、先进的阀座:聚多年球阀制造经验而设计的阀座,确保阀门密封,磨擦系数低,操作力矩小、多种阀座材料、适应范围广。
2、开关无误的手柄:采用扁头阀杆,与手柄的连接不会错位,从而保证手柄指示的开关状态与阀一致辞。
3、锁紧装置:为防止阀门开关误操作,在阀门全开、全关位置有锁定孔,确保阀门处于正确的位置。
4、阀杆防飞结构:阀杆为下装式,防止受压飞出,同时可在火灾后,与阀体形成金属接触,确保阀杆密封。
金属硬密封球阀 设计规范
设计制造标准 | GB/T 21385-2008 |
结构长度标准 | B/T 12221-2005 |
连接法兰标准 | GB/T 9113、ANSI B16.5、JB/T74~90、GB9112~9131、HG20615~20635、SH3406 |
压力温度等级 | GB/T 12224-2005 |
试验检验标准 | GB/T 13927-2008 |
金属硬密封球阀 性能规范
压力等级 | 公称压力 | 磅级 | ||||||||
1.6 | 2.5 | 4.0 | 6.4 | 10.0 | 150 | 300 | 400 | 600 | ||
试验压力 | 壳体试验 | 2.4 | 3.75 | 6.0 | 9.6 | 15.0 | 3.03 | 7.5 | 10.2 | 15.0 |
密封试验 | 1.76 | 2.75 | 4.4 | 7.04 | 11.0 | 2.2 | 5.5 | 7.48 | 11.0 | |
适用工况 | 适用介质 | 纸浆、浆料、粉尘及各种固体颗粒介质 | ||||||||
适用温度 | -196~≤550℃ | |||||||||
适用规范 | 设计制造按 | GB12237-89 API60 JP17S-48 | ||||||||
法兰尺寸按 | JB79-59、GB91133、HG20592-97 ANSI B16.5 JIS B2212-2214 | |||||||||
结构长度按 | GB12221-89 ANSI B16.0 JIS B2002 | |||||||||
检验试验按 | JB/T9092-99 API598 |
金属硬密封球阀 主要零件材料
序号 | 零件名称 | 材质 | 序号 | 零件名称 | 材质 | ||
GB(国标) | ASTM(美标) | GB(国标) | ASTM(美标) | ||||
1 | 阀体 | WCB | A216-WCB | 8 | 弹簧 | 60Si2Mn | AISI 9260 |
2 | 密封圈 | 柔性石墨 | 柔性石墨 | 9 | 垫片 | 柔性石墨+不锈钢 | B12.10-304/F.G |
3 | 阀座 | 1Cr18Ni9Ti | 304 | 10 | 填料 | 柔性石墨 | 柔性石墨 |
4 | 球体 | 1Cr13 | A276-420 | 11 | 填料压盖 | WCB | A216-WCB |
5 | 螺母 | 35 | A194-2H | 12 | 挡圈 | 65Mn | AISI 1066 |
6 | 螺柱 | 35CrMoA | A193-B7 | 13 | 阀杆 | 1Cr13 | A276-410 |
7 | 座垫 | 1Cr18Ni9Ti | 304 | 14 | 螺钉 | 35 | A193-B7 |
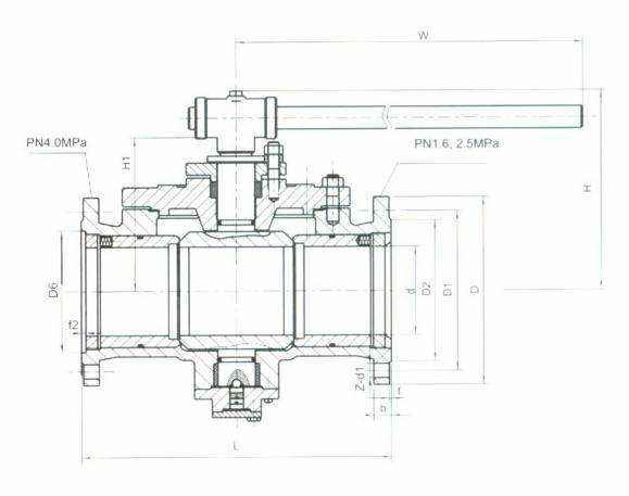
金属硬密封球阀 主要外形尺寸
PN1.6MPa外形尺寸
公称通径DN | 15 | 20 | 25 | 32 | 40 | 50 | 65 | 80 | 100 | 125 | 150 | 200 |
L | 130 | 140 | 150 | 165 | 180 | 200 | 220 | 250 | 280 | 320 | 360 | 400 |
H | 59 | 63 | 75 | 85 | 95 | 107 | 142 | 152 | 178 | 252 | 272 | 342 |
W | 130 | 130 | 160 | 180 | 230 | 230 | 400 | 400 | 650 | 1050 | 1050 | 1410 |
D、D1、D2 | 参照国家标准:GB/T9113、JB/T79、HG20594等相应标准执行生产 | |||||||||||
Wt(Kg) | 2.5 | 3 | 5 | 6 | 7 | 10 | 15 | 19 | 33 | 58 | 93 | 160 |
法兰连接尺寸 | GB/T9113、JB/T79、HG/T20594 |
PN2.5MPa外形尺寸
公称通径DN | 15 | 20 | 25 | 32 | 40 | 50 | 65 | 80 | 100 | 125 | 150 | 200 |
L | 130 | 140 | 150 | 165 | 180 | 200 | 220 | 250 | 320 | 400 | 400 | 550 |
H | 59 | 63 | 75 | 97 | 107 | 142 | 152 | 178 | 252 | 272 | 342 | 345 |
W | 130 | 130 | 160 | 230 | 230 | 400 | 400 | 700 | 1100 | 1100 | 1500 | 1500 |
Wt(Kg) | 2.5 | 3 | 5 | 6 | 7.5 | 10 | 15 | 20 | 33 | 60 | 93 | 175 |
法兰连接尺寸 | GB/T9113、JB/T79、HG/T20594 |
PN4.0MPa外形尺寸
公称通径DN | 15 | 20 | 25 | 32 | 40 | 50 | 65 | 80 | 100 | 125 | 150 | 200 |
L | 130 | 140 | 150 | 180 | 200 | 220 | 250 | 280 | 320 | 400 | 400 | 400 |
H | 59 | 63 | 75 | 85 | 95 | 107 | 142 | 152 | 178 | 252 | 272 | 342 |
W | 130 | 130 | 160 | 230 | 230 | 400 | 400 | 700 | 1100 | 1100 | 1500 | 1500 |
Wt(Kg) | 3 | 4 | 5 | 7 | 9 | 12 | 18 | 28 | 46 | 75 | 106 | 190 |
法兰连接尺寸 | GB/T9113、JB/T79、HG/T20594 |
PN6.4MPa外形尺寸
公称通径DN | 15 | 20 | 25 | 32 | 40 | 50 | 65 | 80 | 100 | 125 | 150 | 200 |
L | 165 | 190 | 216 | 229 | 241 | 292 | 330 | 356 | 432 | 508 | 559 | 660 |
H | 59 | 63 | 75 | 97 | 107 | 142 | 152 | 178 | 252 | 272 | 305 | 398 |
W | 130 | 130 | 160 | 230 | 230 | 400 | 400 | 700 | 1100 | 1100 | 1500 | 1800 |
Wt(Kg) | 6.5 | 7 | 8 | 12 | 14 | 18 | 28 | 40 | 65 | 98 | 140 | 250 |
法兰连接尺寸 | GB/T9113、JB/T79、HG/T20594 |
良好的品质、优良的服务 宁波戈伟硬件开发有限公司为你创造更多价值!
“宁波戈伟硬件开发有限公司”的期望,不断提升服务质量,精益求精,“真诚的服务”是“宁波戈伟硬件开发有限公司”永恒的主题。“宁波戈伟硬件开发有限公司”严格按照IS09001-2000 质量体系认证要求,质量严格把关, 责任到人,确保生产、销售、服务的健康运行。加强与用户沟通,竭诚为广大客户提供优良产品,至善至美服务。特此我厂做出以下承诺:
产品标准:
产品严格按照中国GB、HG 标准和美国API等标准设计、制造、验收。密封面硬度达到国家规定要求,宽度超过国家标准。
售前服务:
产品介绍,技术交流,非标产品设计,疑难解答。
售中服务:
守信合同,保证及时供货,随时保持与客户联系。 对特殊或复制的产品,我厂安排技术人员对用户进行产品使用、故障排除
售后服务:
1、“宁波戈伟硬件开发有限公司”牌产品品质期为自出厂起12个月,实行“三包”服务(包退、包换、保修)。
2、产品在使用中我厂定期组织技术、质检人员进行访问,征询用户对产品质量、 使用状况、改进意见等方面的反馈, 以便进一步提高产品质量。
3、对用户投诉质量问题,快速作出反应,售后服务人员在24-36小时(省外48小时)赶赴现场。
4、对售后服务,要求用户填写服务后的质量反馈信息表,并作出鉴定意见,以便提高宁波戈伟硬件开发有限公司的服务质量。
1、客户如对产品有特殊要求,须在订货合同中提供以下说明:
a、结构长度;
b、连接形式;
c、公称直径、全通径、缩径、管道尺寸;
d、运行介质及温度、压力范围;
e、试验、检验标准及其他要求
2、本厂可根据客户特定要求配置各类驱动装置。
3、如由客户提供确定的阀门类型和型号时,客户应正确说明其型号的含义和要求,在供需双方理解一致的条件下签订合同。
4、期货、订货的客户请先来电函详细告诉所需的阀门型号、规格、数量以及交货时间、地点,并按总的30%预定金或全额货款及时汇入我厂帐户,其余货款待发货前汇入,以便及时安排发货。
订单流程:
1、客户采购清单传真至,或来电咨询
2、收到客户采购清单,为客户提供阀门型号选型与报价(价格清单)。
3、具体商定:交货期、特殊要求等事宜。
订货须知:
1、客户如对产品有特殊要求,须在订货合同中提供以下说明:
|
|||||
|
|||||
2、本厂可根据客户特定要求配置各类驱动装置。
|
|||||
3、如由客户提供确定的阀门类型和型号时,客户应正确说明其型号的含义和要求,在供需双方理解一致的条件下签订合同。
|
|||||
4、期货、订货的客户请先来电函详细告诉所需的阀门型号、规格、数量以及交货时间、地点,并按总的30%预定金或全额货款及时汇入我厂账户, 其余货款待发货前汇入,以便及时安排发货。
|
售中服务:
守信合同,保证及时供货,随时保持与客户联系。
对特殊或复制的产品,我厂安排技术人员对用户进行产品使用、故障排除
售后服务:
1、“宁波戈伟硬件开发有限公司”产品品质期为自出厂起12个月,实行“三包”服务(包退、包换、保修)。
2、产品在使用中我厂定期组织技术、质检人员进行访问,征询用户对产品质量、使用状况、改进意见等方面的反馈,
以便进一步提高产品质量。
3、对用户投诉质量问题,快速作出反应,售后服务人员在24-36小时(省外48小时)赶赴现场。
4、对售后服务,要求用户填写服务后的质量反馈信息表,并作出鉴定意见,以便提高“宁波戈伟硬件开发有限公司”的服务质量。
声明 |
|